SF-3-114-020

Продам 1-кімнатну квартиру в новобудові, ЖК URBN

Розташування: Івано-Франківськ, Центр, Фізкультурна вул.
1 Кімнат
39 м2
5/13 поверх
Ціна
28 875 $

Інформація

Район, де є все необхідне для життя — справжня знахідка для молодого подружжя!
Ви молода сім’я з дітками? Тоді це ідеальний варіант саме для вас:
• до садочка чи школи — всього 7 хвилин пішки;
• сучасні дитячі майданчики просто під будинком для активних прогулянок;
• парк і озеро — лише 10 хвилин неспішної ходьби, і ось ви вже насолоджуєтесь часом із сім’єю на природі;
• комфортні покупки — на території комплексу є власна розвинена інфраструктура.

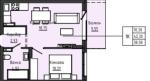
Однокімнатна квартира площею 38,5 м² розташована на зручному 5-му поверсі.
Вас порадує велика кухня-студія — ідеальне місце для затишних вечерь у колі родини, простора спальня, місткий санвузол і зручний коридор!

Зацікавила пропозиція? Телефонуй уже зараз і дізнайся більше деталей!

Інфраструктура

Паркінг: гараж (на одну автівку); підземний паркінг;
Заклади освіти: школа, дитсадок;
Побутовий сервіс: мінімаркет, супермаркет, ринок, парковка перед будинком, аптека, клініка, перукарня, пошта;
Релаксаційні сервіси: парк (сад), дитячий майданчик;
Обʼєкти громадського харчування: кафе, фастфуд, їдальня;
28 875 $ вартість об'єкта
750 $ ціна за м2
38.50 м2
1 кімнат
5 Поверх
13 К-ть поверхів

Параметри

центральна Вода:
автономне, електричне Опалення:

Доброустрій

Додатково: сміттєпровід;
Безпека: домофон, броньовані двері, відеонагляд, охорона території;

Додатково

Дата оновлення інформації: 11.04.2025 09:49;